Logo
За 20 лет опыта работы изготовили более 500 бань
+7 911 619 20 90
  • Расчет стоимости
  • Проекты
    • Каркасные бани
    • Бани из бруса
    • Мобильные бани
    • Каркасные бани 2026
  • Наши работы
  • Контакты
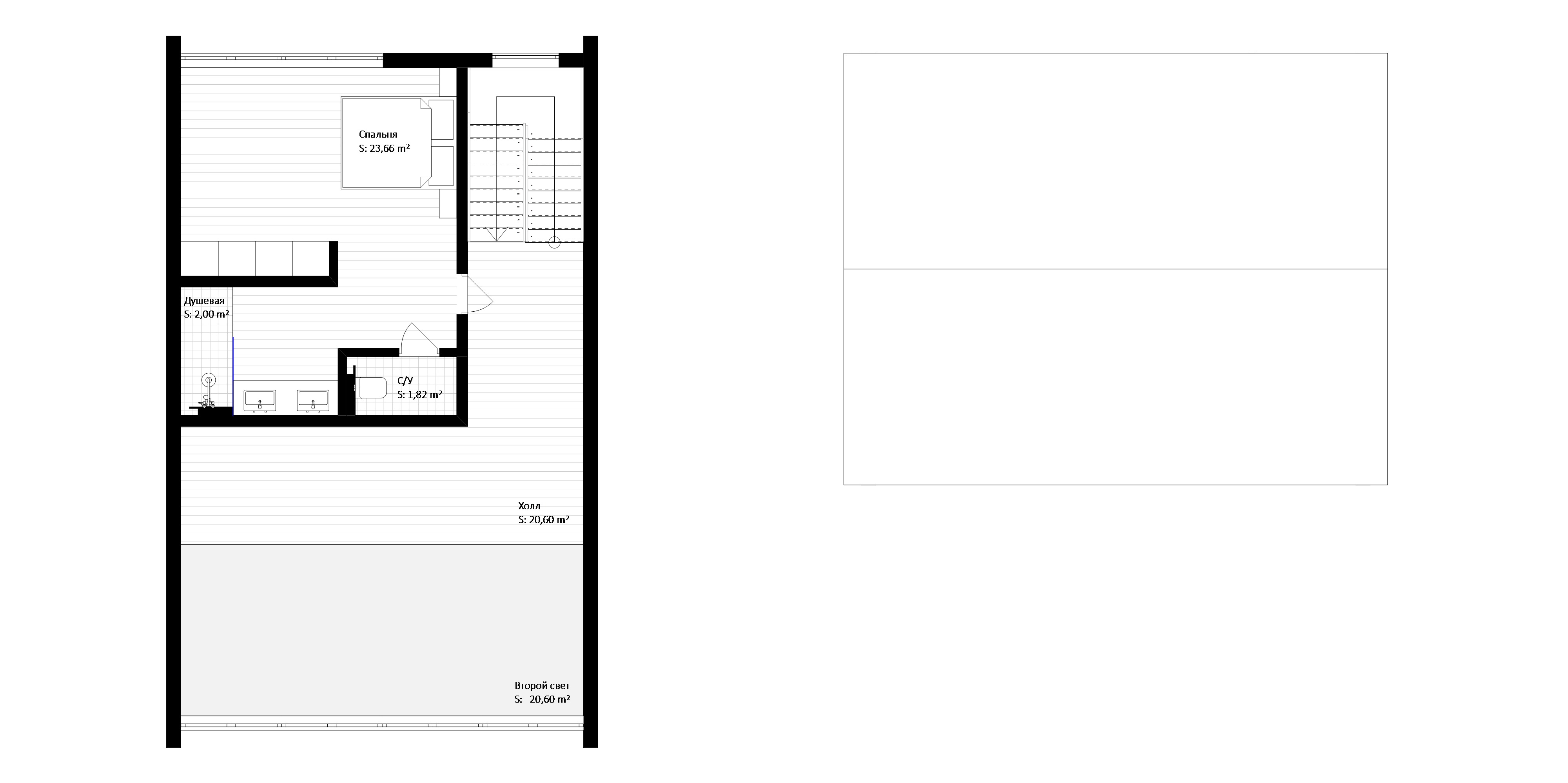
Егор 21х12
Егор 21х12
Цена бани с доставкой и установкой: 13 200 000 руб.
Срок доставки: 1-2 недели
Гарантия: 5 лет
Рассрочка: 0% до 500 тыс. руб.
Фундамент
Свайно-винтовой, сваи 2500х108мм. Цоколь обшивается доской строганной 20х100 мм. либо ЦСП 10мм.
Обвязочный ряд
Брус сечением 150х150 мм. камерной сушки, обработан био-огнезащитными спецсредствами на производстве. Установка: монтаж на фундамент. Гидроизоляция- РПП 300(два слоя).
Лаги
Доска камерной сушки, 40х150 мм. обработана био-огнезащитными спецсредствами на производстве, шаг укладки 300 мм.
Пол черновой
ОСБ 9 мм. крепление: саморезы оцинкованные. Паро-гидроизоляция izospan. Монтаж: сплошной настил.
Пол чистовой
Шпунтованная доска камерной сушки, толщина – 36 мм. Крепление: саморезы в шпунт. Тепловой зазор: не более 2 см по периметру, прикрываемый деревянным плинтусом. Утепление:150 мм. Паро-, гидроизоляция izospan. Либо подготовка под монтаж чистового пола ЦСП 10 мм. 2 слоя.
Стены
Каркас из доски 40х150 мм камерной сушки, доска обработана био-огнезащитными спецсредствами на производстве, шаг стоек 590 мм. Монтаж: гвозди, уголки, пластины, саморезы оцинкованные. Утепление 150 мм. Паро-изоляция и ветрозащита Izospan. Вент зазор 40 мм снаружи, 20 мм. изнутри. Обшивка снаружи имитация бруса либо ЦСП 10 мм. Обшивка изнутри имитация бруса либо ГКЛ под отделку.
Перегородки
Перегородки из доски 40х100 мм камерной сушки, доска обработана био-огнезащитными спецсредствами на производстве, шаг стоек 590 мм. Монтаж: гвозди, уголки, пластины, саморезы оцинкованные. Утепление 100 мм. Паро-изоляция Izospan с двух сторон. Обшивка имитация бруса либо ГКЛ под отделку.
Потолок
Обшивка: имитацией бруса хвойных пород, сушка – камерная. Утепление: – 150 мм. Паро-изоляция и ветрозащита Izospan.
Кровля
Мягкая, либо металлочерепица, цвет на выбор. Стропильная система: доска размером 40х150 мм. Вент зазор 40 мм., доска обработана био-огнезащитными спецсредствами на производстве, шаг укладки 590 мм. Обрешетка: доска размером 20х100 мм., доска обработана био-огнезащитными спецсредствами на производстве. Паро-изоляция и ветрозащита Izospan. Свесы кровли подшиваются доской строганной, камерной сушки 17х90мм.
Терраса
Столбы деревянные, сечение 140х140 мм. Ограждение: строганная доска 38х140 мм  Пол: доска 38х140 мм. материал строганный, камерной сушки.
Окна
Металлопластиковые Двухкамерные стеклопакеты, цвет белый, размер по проекту. Оснащение: заводская фурнитура, наличники.
Двери
Металлическая (Россия) – для входной; Филёнчатые – для межкомнатных; стеклянная дверь – для парной. Оснащение: заводская фурнитура, наличники.
Парная
Осиновая вагонка класс А. Теплоизоляция: фольга. Пологи: материал – осина, размеры – 30х90мм + спинка. Оснащение: отдушина размером 150х150 мм. Оборудование: экранированная кирпичом заводская печь «Ермак»; тип трубы: сэндвич.
Фундамент
Свайно-винтовой, сваи 2500х108мм. Цоколь обшивается доской строганной 20х100 мм. либо ЦСП 10мм.
Обвязочный ряд
Брус сечением 150х150 мм. камерной сушки, обработан био-огнезащитными спецсредствами на производстве. Установка: монтаж на фундамент. Гидроизоляция- РПП 300(два слоя).
Лаги
Доска камерной сушки, 40х150 мм. обработана био-огнезащитными спецсредствами на производстве, шаг укладки 300 мм.
Пол черновой
ОСБ 9 мм. крепление: саморезы оцинкованные. Паро-гидроизоляция izospan. Монтаж: сплошной настил.
Пол чистовой
Шпунтованная доска камерной сушки, толщина – 36 мм. Крепление: саморезы в шпунт. Тепловой зазор: не более 2 см по периметру, прикрываемый деревянным плинтусом. Утепление:150 мм. Паро-, гидроизоляция izospan. Либо подготовка под монтаж чистового пола ЦСП 10 мм. 2 слоя.
Стены
Каркас из доски 40х150 мм камерной сушки, доска обработана био-огнезащитными спецсредствами на производстве, шаг стоек 590 мм. Монтаж: гвозди, уголки, пластины, саморезы оцинкованные. Утепление 150 мм. Паро-изоляция и ветрозащита Izospan. Вент зазор 40 мм снаружи, 20 мм. изнутри. Обшивка снаружи имитация бруса либо ЦСП 10 мм. Обшивка изнутри имитация бруса либо ГКЛ под отделку.
Перегородки
Перегородки из доски 40х100 мм камерной сушки, доска обработана био-огнезащитными спецсредствами на производстве, шаг стоек 590 мм. Монтаж: гвозди, уголки, пластины, саморезы оцинкованные. Утепление 100 мм. Паро-изоляция Izospan с двух сторон. Обшивка имитация бруса либо ГКЛ под отделку.
Потолок
Обшивка: имитацией бруса хвойных пород, сушка – камерная. Утепление: – 150 мм. Паро-изоляция и ветрозащита Izospan.
Кровля
Мягкая, либо металлочерепица, цвет на выбор. Стропильная система: доска размером 40х150 мм. Вент зазор 40 мм., доска обработана био-огнезащитными спецсредствами на производстве, шаг укладки 590 мм. Обрешетка: доска размером 20х100 мм., доска обработана био-огнезащитными спецсредствами на производстве. Паро-изоляция и ветрозащита Izospan. Свесы кровли подшиваются доской строганной, камерной сушки 17х90мм.
Терраса
Столбы деревянные, сечение 140х140 мм. Ограждение: строганная доска 38х140 мм  Пол: доска 38х140 мм. материал строганный, камерной сушки.
Окна
Металлопластиковые Двухкамерные стеклопакеты, цвет белый, размер по проекту. Оснащение: заводская фурнитура, наличники.
Двери
Металлическая (Россия) – для входной; Филёнчатые – для межкомнатных; стеклянная дверь – для парной. Оснащение: заводская фурнитура, наличники.
Парная
Осиновая вагонка класс А. Теплоизоляция: фольга. Пологи: материал – осина, размеры – 30х90мм + спинка. Оснащение: отдушина размером 150х150 мм. Оборудование: экранированная кирпичом заводская печь «Ермак»; тип трубы: сэндвич.
Фундамент
Свайно-винтовой, сваи 2500х108мм. Цоколь обшивается доской строганной 20х100 мм. либо ЦСП 10мм.
Обвязочный ряд
Брус сечением 150х150 мм. камерной сушки, обработан био-огнезащитными спецсредствами на производстве. Установка: монтаж на фундамент. Гидроизоляция- РПП 300(два слоя).
Лаги
Доска камерной сушки, 40х150 мм. обработана био-огнезащитными спецсредствами на производстве, шаг укладки 300 мм.
Пол черновой
ОСБ 9 мм. крепление: саморезы оцинкованные. Паро-гидроизоляция izospan. Монтаж: сплошной настил.
Пол чистовой
Шпунтованная доска камерной сушки, толщина – 36 мм. Крепление: саморезы в шпунт. Тепловой зазор: не более 2 см по периметру, прикрываемый деревянным плинтусом. Утепление:150 мм. Паро-, гидроизоляция izospan. Либо подготовка под монтаж чистового пола ЦСП 10 мм. 2 слоя.
Стены
Каркас из доски 40х150 мм камерной сушки, доска обработана био-огнезащитными спецсредствами на производстве, шаг стоек 590 мм. Монтаж: гвозди, уголки, пластины, саморезы оцинкованные. Утепление 150 мм. Паро-изоляция и ветрозащита Izospan. Вент зазор 40 мм снаружи, 20 мм. изнутри. Обшивка снаружи имитация бруса либо ЦСП 10 мм. Обшивка изнутри имитация бруса либо ГКЛ под отделку.
Перегородки
Перегородки из доски 40х100 мм камерной сушки, доска обработана био-огнезащитными спецсредствами на производстве, шаг стоек 590 мм. Монтаж: гвозди, уголки, пластины, саморезы оцинкованные. Утепление 100 мм. Паро-изоляция Izospan с двух сторон. Обшивка имитация бруса либо ГКЛ под отделку.
Потолок
Обшивка: имитацией бруса хвойных пород, сушка – камерная. Утепление: – 150 мм. Паро-изоляция и ветрозащита Izospan.
Кровля
Мягкая, либо металлочерепица, цвет на выбор. Стропильная система: доска размером 40х150 мм. Вент зазор 40 мм., доска обработана био-огнезащитными спецсредствами на производстве, шаг укладки 590 мм. Обрешетка: доска размером 20х100 мм., доска обработана био-огнезащитными спецсредствами на производстве. Паро-изоляция и ветрозащита Izospan. Свесы кровли подшиваются доской строганной, камерной сушки 17х90мм.
Терраса
Столбы деревянные, сечение 140х140 мм. Ограждение: строганная доска 38х140 мм  Пол: доска 38х140 мм. материал строганный, камерной сушки.
Окна
Металлопластиковые Двухкамерные стеклопакеты, цвет белый, размер по проекту. Оснащение: заводская фурнитура, наличники.
Двери
Металлическая (Россия) – для входной; Филёнчатые – для межкомнатных; стеклянная дверь – для парной. Оснащение: заводская фурнитура, наличники.
Парная
Осиновая вагонка класс А. Теплоизоляция: фольга. Пологи: материал – осина, размеры – 30х90мм + спинка. Оснащение: отдушина размером 150х150 мм. Оборудование: экранированная кирпичом заводская печь «Ермак»; тип трубы: сэндвич.

Посмотрите другие наши проекты

Посмотрите галерею выполненных
проектов и убедитесь в нашем опыте
Посмотрите галерею выполненных проектов и убедитесь в нашем опыте
Лучший способ убедиться в качестве строительства — посетить строящиеся объекты.
Лучший способ убедиться в качестве строительства — посетить строящиеся объекты. 
Внутренняя отделка
Внутренняя отделка
Фото объектов снаружи
Фото объектов снаружи
Запишитесь на бесплатную экскурсию и посмотрите наши бани вживую
Logo
ИНН: 531312526724
+7 911 619 20 90
Политика обработки персональных данных
Укажите параметры
и получите детальный расчет
Оставьте заявку.
Сделаем индивидуальный проект бани под вас 🔥

В какое время вам лучше перезвонить?

Например с 9 до 12:00

Мы против СПАМа!

Оставьте контакты для связи, перезвоним в течение 15 мин